混凝土磁力振动台如何操作 使用及维护方法
(一)使用方法
1、将程序控制器面板上的预置拨码开关调节到要求的振动时间(单位:秒)。在振动过程中严禁调节预置拨码开关。
2、将装满混凝土的试模依次放置在电磁铁的相应位置,开启控制面板上的电磁铁开关,试模即牢固固定在振动台上。
3、按下控制器面板上的启动开关,振动台即启动,运转到预定振动时间,自动切换到制动,经7秒钟后自动断电。
4、关闭电磁铁开关,试模与台面电磁铁脱开,然后即可搬取试模。
(二)维护
1、振动成型完毕之后,台面残留的混凝土应擦洗干净。
2、振动电机和悬挂轴承,应定期加注润滑油。
3、使用完毕,应切断电源。
4、电磁铁不能通电时间过长,否则线圈容易烧毁。
混凝土磁力振动台如何操作 安装
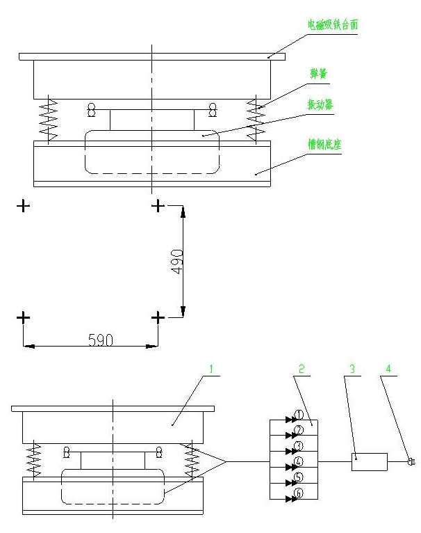
1、 将振动台安装在混凝土基础上,基础与槽钢底座之间垫大于5mm厚的橡胶带。地脚螺栓尺寸为M16×390mm,4只用户自备,螺栓透出地面60mm,地脚螺栓位置如“图2”。振动台安装后应保持台面水平。
2、将控制器放在距振动相近适当位置,将振动台上多线插头,插入控制器多线插座内。控制器上电源插入3~380V电源插座上。
3、为确保安全,振动台与控制器连接线,穿在硬塑料管或钢管内,并埋设牢固可靠,防止电缆损坏。
4、应有良好接地装置。
混凝土磁力振动台如何操作 电气接线图

1、振动台 2、多线插头座 3、程序控制器
4、四芯电源插头,①~⑦分别为多线插头座内部编号,①②接电磁铁,⑤⑥⑦接振动电机,④接地


